537 Groover StreetBall Ground, GA 30107



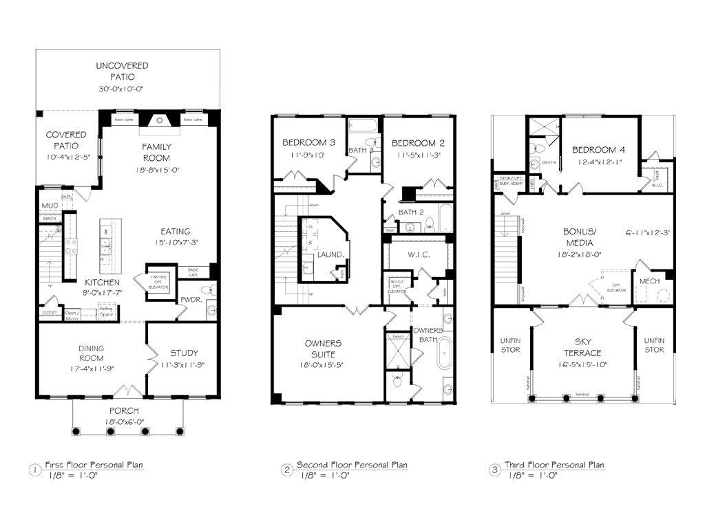
The new Stratford Townhome Plan by JW Collection founded by John Wieland . ELEVATOR INCLUDED! Sky Terrace with amazing views of North Georgia Mountains and Downtown Ball Ground. Located in charming Ball Ground as part of the Farmer’s Crossing development by the Lynwood Group. The Heritage at Farmer’s Crossing is an exclusive, walkable enclave of 16 luxury three story townhomes by the JW Collection, founded by John Wieland. Designed to honor the historic character and natural beauty of the area. This exquisite JWC designer plan has wonderful living space for all your entertaining needs, with an abundance of windows and natural light. As you enter the home, you will find oversized 10ft ceilings throughout the main level. You will be pleased to discover many upgraded features throughout, including quartz countertops, beautiful soft close cabinetry to the ceilings in the kitchen, large kitchen island equipped with a double trash pullout, sink, and dishwasher. The kitchen also boasts built -in KitchenAid stainless steel appliances with tile to the ceiling behind your designer wood hood. Enjoy the wood shelving in your walk-in pantry. Designer hardwood flooring is on the entire main level and all stairs. Step into the bright and warm Great room that includes a custom trim detailed fireplace with gas logs, built in cabinetry, and a stained cedar mantle. Upstairs the owner’s suite is its own private retreat to relax at the end of a long day. The owner’s bath is a spa experience with a free-standing soaking tub, large walk-in shower with bench, shampoo niche, frameless door, and tile all the way to the ceiling. Attached to the spa bath you will find separate Owners closets with custom built in shelving. Two additional secondary guest bedrooms include private baths with quartz countertops, designer tile to the ceiling in all showers/bath. As you approach the top floor, be ready to be amazed with the surrounding views of the North Georgia Mountains. You can spend mornings watching the sunrise with a cup of coffee or evenings by the fireplace with a breathtaking sunset from your sky terrace. One of the bonus features of this home is a detached 3 CAR GARAGE with approximately 600 sq. ft of unfinished storage that can be converted to a game room, climate-controlled storage, or an office suite suited to your needs. Also enjoy your evenings on the oversized covered rear patio. This home has it all! Just steps to vibrant Downtown Ball Ground with the perfect blend of luxury and small-town charm. Adjacent to Calvin Farmer Park, and walking distance to Ball Ground shops, dining, Botanical Garden, and sporting activities. Easy access to Cumming, Canton, Alpharetta, Woodstock, and North Georgia Mountains. This location is unbeatable. Please do not wait as there are limited opportunities. Call us today for details or to schedule a tour.
5 months ago | Listing first seen on site | |
5 months ago | Listing updated with changes from the MLS® |
Listings identified with the FMLS IDX logo come from FMLS and are held by brokerage firms other than the owner of this website and the listing brokerage is identified in any listing details. Information is deemed reliable but is not guaranteed. If you believe any FMLS listing contains material that infringes your copyrighted work, please click here to review our DMCA policy and learn how to submit a takedown request.

© 2017-2025 First Multiple Listing Service, Inc.
Did you know? You can invite friends and family to your search. They can join your search, rate and discuss listings with you.